Menu
Un projet réalisé par :Sarah COHEN & Olivier PERONE - SCOP  Architecte à Nanterre

Maison neuve contemporaine COS1 - Nanterre

 Nanterre - 92
Sarah COHEN & Olivier PERONE - SCOP
Accueil Projets Maison neuve contemporaine COS1 - Nanterre

Construction d'une maison individuelle de 113m² et d'un studio de 30m²

Maison neuve contemporaine COS1 - Nanterre

Programme /// Création de deux logements neufs

Maître d’ouvrage /// Privé

Superficie /// 140 m²

Coût HT des travaux /// 240 000 euros

Equipe ///


Le terrain concerné se situe dans le tissu pavillonnaire de la rue de la Source.
Le terrain étroit (largeur sur rue d’environ 9m, en fond de parcelle d’environ 6.8m) présente une forme en « L ». Le programme consiste en la création de deux logements.

Profondeurs de champs
Au vu de la configuration de la parcelle et du programme, le bâtiment est divisé dans le sens de la largeur en deux volumes de deux hauteurs distinctes, accentuant ainsi le caractère en lanière de la parcelle. Le plus petit logement s’implante en retrait de la rue créant un premier plan relativement bas en R+1, tandis que le plus grand en R+2 vient en arrière-plan.
Ce second volume est ciselé (à la fois pour accentuer davantage l’exiguïté de la parcelle et respecter le CES de 0,3) par une « faille » verticale bardée de bois.

Des espaces extérieurs aux usages complémentaires
A défaut de pouvoir aménager de grands espaces extérieurs de jardin, l’idée est de donner différents statuts à ces espaces. Ainsi, le jardin côté rue (exposé sud-ouest) s’insère dans la trame paysagère du quartier et participe à la valorisation de l’espace de la rue. Le jardin à l’arrière de la maison (orienté nord-est) aura une vocation beaucoup plus intime. Mais nous aménageons également un espace extérieur « suspendu » ; ainsi, le logement le plus grand bénéficie, à R+1 de la toiture du logement le plus petit, d’une terrasse extérieure exposée sud-ouest abritée par un claustra bois offrant une vue sur le fort du Mont Valérien.

Blanc en saillie / Bois en creux
Les matériaux choisis sont un enduit blanc lisse pour les volumes principaux. Tous les espaces « en creux » sont habillés de tasseaux de bois (mélèze) calepinés verticalement traités avec une lasure incolore. Trois tailles de planches seront employées (épaisseur et largeur) afin de donner une vibration et une variation à cet habillage en contraste avec le caractère lisse et blanc de l’enduit.

  • Maison neuve contemporaine COS1 - Nanterre : NTR_AXO_2

    Axonométrie - Division de la parcelle

  • Maison neuve contemporaine COS1 - Nanterre : NTR_AXO_3

    Axonométrie - 2 logements sur une parcelle

  • Maison neuve contemporaine COS1 - Nanterre : NTR_AXO_4

    Axonométrie - Plusieurs profondeurs de plan

  • Maison neuve contemporaine COS1 - Nanterre : NTR_AXO_5

    Axonométrie - Espaces extérieurs

  • Maison neuve contemporaine COS1 - Nanterre : 09-Nanterre_maison contemporaine_plan rdc

    Plan RdC

  • Maison neuve contemporaine COS1 - Nanterre : 10-Nanterre_maison contemporaine_plan r+1

    Plan R+1

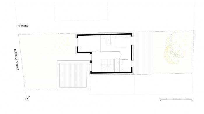
  • Maison neuve contemporaine COS1 - Nanterre : 11-Nanterre_maison contemporaine_plan r+2

    Plan R+2

Trouvez un architecte pour votre projet

Protection de vos données personnelles

Depuis toujours, architectes-france.com ne transfère aucune donnée personnelle à d'autres acteurs que ceux directement concernés par le projet (architectes, architectes d'intérieur...) et qui appartiennent à son réseau. Nos listes ne sont jamais transmises ou vendues à des partenaires extérieurs, même si ceux-ci appartiennent au domaine de la construction.
Toute modification dans ce domaine ne serait effectuée qu'avec votre consentement.

Je consens à ce que mes données personnelles soient collectées pour permettre à architectes-france de transférer votre projet aux architectes. Seul Architectes-france, ses équipes internes et la maitrise d'oeuvre concernée par le projet y ont accès. Aucune transmission de données à des tiers à l'exclusion de ceux décrits ci dessus n'est réalisée.

Mes données téléphoniques seront uniquement utilisées par Architectes-france.com et les architectes de notre réseau dans le cadre de la qualification et du suivi de mon projet.

Les données sont conservées pendant une durée de 18 mois courant à partir des derniers contacts effectifs entre architectes-france et vous ou architectes-france et un membre de la maitrise d'oeuvre en rapport avec ce projet et qui serait en relation avec architectes-france.

Conformément à la loi « informatique et libertés », vous pouvez exercer votre droit d'accès aux données vous concernant et les faire rectifier en contactant : Architectes-france, 23 avenue du Mirail - parc du Mirail - 33370 Artigues-près Bordeaux. Tél. 05.47.74.51.01 - contact@architectes-france.com

Trouvez un architecte pour votre projet

Protection de vos données personnelles

Depuis toujours, architectes-france.com ne transfère aucune donnée personnelle à d'autres acteurs que ceux directement concernés par le projet (architectes, architectes d'intérieur...) et qui appartiennent à son réseau. Nos listes ne sont jamais transmises ou vendues à des partenaires extérieurs, même si ceux-ci appartiennent au domaine de la construction.
Toute modification dans ce domaine ne serait effectuée qu'avec votre consentement.

Je consens à ce que mes données personnelles soient collectées pour permettre à architectes-france de transférer votre projet aux architectes. Seul Architectes-france, ses équipes internes et la maitrise d'oeuvre concernée par le projet y ont accès. Aucune transmission de données à des tiers à l'exclusion de ceux décrits ci dessus n'est réalisée.

Mes données téléphoniques seront uniquement utilisées par Architectes-france.com et les architectes de notre réseau dans le cadre de la qualification et du suivi de mon projet.

Les données sont conservées pendant une durée de 18 mois courant à partir des derniers contacts effectifs entre architectes-france et vous ou architectes-france et un membre de la maitrise d'oeuvre en rapport avec ce projet et qui serait en relation avec architectes-france.

Conformément à la loi « informatique et libertés », vous pouvez exercer votre droit d'accès aux données vous concernant et les faire rectifier en contactant : Architectes-france, 23 avenue du Mirail - parc du Mirail - 33370 Artigues-près Bordeaux. Tél. 05.47.74.51.01 - contact@architectes-france.com