Menu
Un projet réalisé par :Plux  Architecte à Croix

Réhabiliation d'une chapelle à CROIX_Architecte Lille PLUX

 Croix - 59
Plux
Accueil Projets Réhabiliation d'une chapelle à CROIX_Architecte Lille PLUX

L’ambition de ce projet est de vous apporter un foyer chaleureux correspondant au mode de vie de nos clients, tout en mettant en valeur des éléments caractéristiques et remarquables du bien immobilier.

Réhabiliation d'une chapelle à CROIX_Architecte Lille PLUX

L’ambition de ce projet est de vous apporter un foyer chaleureux correspondant au mode de vie de nos clients, tout en mettant en valeur des éléments caractéristiques et remarquables du bien immobilier.

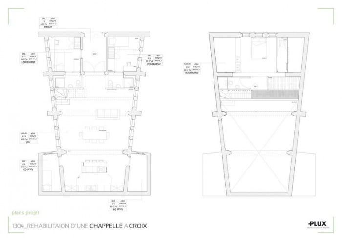
Notre parti pris a été de composer avec votre programme tout en préservant le charme de la chapelle. Ainsi les espaces existants cloisonnés sont conservés et permettent d’y loger les chambres d’étudiant ainsi qu’une autre chambre d’appoint.

La nef centrale reste entièrement décloisonnée, seule la limite entre la hall et la nef a été modifiée. Cela permet de loger, sous cette avancée, les salles d’eau des deux chambres d’étudiant, d’y placer l’escalier, ainsi que l’accès à l’espace en mezzanine.

Depuis l’entrée, la distribution aux différents espaces qui composent la chapelle suit les passages et ouvertures existantes. Ces éléments ont été conservés de manière à être parfaitement intégrés au lieu. Ainsi, depuis le hall, on accède aux deux chambres d’étudiant de chaque côté, puis, on accède à la partie privée de la maison.

La pièce principale regroupe le salon, la salle à manger et la cuisine. Ces trois espaces profitent de l’ensemble du volume de la nef centrale. Ce lieu se veut généreux et fluide mais aussi chaleureux et convivial. C’est ainsi que l’escalier a été placé à cet endroit, permettant d’accéder à la mezzanine, sur laquelle se trouvent la chambre, le dressing, la salle de bain et le sanitaire. L’escalier glisse derrière un large bandeau horizontal qui donne un fond à la perspective depuis le centre de la nef. Le conduit de cheminée existant est réutilisé et permet de placer un foyer, qui permettra de chauffer la chapelle mais aussi de participer à l’ambiance générale du lieu, à la fois raffinée, authentique et confortable.

La cuisine occupe une place centrale, placée à l’endroit de l’ancien chœur. Par un jeu de marches existantes et à la mise en place de comptoir de différentes hauteur, le plan de cuisson se trouve au même niveau que le «mange debout». Grâce à cette configuration nos clients auront la possibilité de se retrouver en famille et entre amis pour discuter, boire un verre, cuisiner...

A l’étage, la chambre largement ouverte, permet, de se retrouver dans un lieu cosy et confortable. L’articulation de la chambre, du dressing et de la salle de douche permet de décloisonner, tout en séquençant chaque lieu. C’est un endroit simple, dans lequel nos clients prendrez plaisir à vous reposer, prendre soin d'eux et choisir leur tenue du jour.

Ce projet, grâce à un jeu fin sur la lumière, les matériaux, la fluidité et les volumes existants, offre, aujourd’hui, un caractère convivial et actuel à chacun des lieux qui le compose.

  • Réhabiliation d'une chapelle à CROIX_Architecte Lille PLUX : architecte architecte d'intérieur lille nord pas de calais rénovation restructuration aménagement décoration valenciennes

    architecte architecte d'intérieur lille nord pas de calais rénovation restructuration aménagement décoration valenciennes

  • Réhabiliation d'une chapelle à CROIX_Architecte Lille PLUX : architecte architecte d'intérieur lille nord pas de calais rénovation restructuration aménagement décoration valenciennes
  • Réhabiliation d'une chapelle à CROIX_Architecte Lille PLUX : architecte architecte d'intérieur lille nord pas de calais rénovation restructuration aménagement décoration valenciennes

Trouvez un architecte pour votre projet

Protection de vos données personnelles

Depuis toujours, architectes-france.com ne transfère aucune donnée personnelle à d'autres acteurs que ceux directement concernés par le projet (architectes, architectes d'intérieur...) et qui appartiennent à son réseau. Nos listes ne sont jamais transmises ou vendues à des partenaires extérieurs, même si ceux-ci appartiennent au domaine de la construction.
Toute modification dans ce domaine ne serait effectuée qu'avec votre consentement.

Je consens à ce que mes données personnelles soient collectées pour permettre à architectes-france de transférer votre projet aux architectes. Seul Architectes-france, ses équipes internes et la maitrise d'oeuvre concernée par le projet y ont accès. Aucune transmission de données à des tiers à l'exclusion de ceux décrits ci dessus n'est réalisée.

Mes données téléphoniques seront uniquement utilisées par Architectes-france.com et les architectes de notre réseau dans le cadre de la qualification et du suivi de mon projet.

Les données sont conservées pendant une durée de 18 mois courant à partir des derniers contacts effectifs entre architectes-france et vous ou architectes-france et un membre de la maitrise d'oeuvre en rapport avec ce projet et qui serait en relation avec architectes-france.

Conformément à la loi « informatique et libertés », vous pouvez exercer votre droit d'accès aux données vous concernant et les faire rectifier en contactant : Architectes-france, 23 avenue du Mirail - parc du Mirail - 33370 Artigues-près Bordeaux. Tél. 05.47.74.51.01 - contact@architectes-france.com

Trouvez un architecte pour votre projet

Protection de vos données personnelles

Depuis toujours, architectes-france.com ne transfère aucune donnée personnelle à d'autres acteurs que ceux directement concernés par le projet (architectes, architectes d'intérieur...) et qui appartiennent à son réseau. Nos listes ne sont jamais transmises ou vendues à des partenaires extérieurs, même si ceux-ci appartiennent au domaine de la construction.
Toute modification dans ce domaine ne serait effectuée qu'avec votre consentement.

Je consens à ce que mes données personnelles soient collectées pour permettre à architectes-france de transférer votre projet aux architectes. Seul Architectes-france, ses équipes internes et la maitrise d'oeuvre concernée par le projet y ont accès. Aucune transmission de données à des tiers à l'exclusion de ceux décrits ci dessus n'est réalisée.

Mes données téléphoniques seront uniquement utilisées par Architectes-france.com et les architectes de notre réseau dans le cadre de la qualification et du suivi de mon projet.

Les données sont conservées pendant une durée de 18 mois courant à partir des derniers contacts effectifs entre architectes-france et vous ou architectes-france et un membre de la maitrise d'oeuvre en rapport avec ce projet et qui serait en relation avec architectes-france.

Conformément à la loi « informatique et libertés », vous pouvez exercer votre droit d'accès aux données vous concernant et les faire rectifier en contactant : Architectes-france, 23 avenue du Mirail - parc du Mirail - 33370 Artigues-près Bordeaux. Tél. 05.47.74.51.01 - contact@architectes-france.com