
Transformation d'un centre médical + 8 logements - Gagny
Gagny - 93Programme ///
290 m² centre dentaire
290 m² centre médical
700 m² 8 logements (2T2 simplex, 4T3 simplex et duplex, 2T4 duplex)
Maître d’ouvrage ///
Privé
Superficie ///
1280m² SP
Coût HT des travaux ///
1200000
Equipe ///
Archi MOE : studio SCOP
BET géotechnique : Esiris
BET structure : Oregon
BET fluides et thermique : ETC ingéniérie
Contexte architectural, urbain et paysager élargi
Le terrain se situe dans le centre-ville de Gagny (93). Il se situe sur un axe principal de la ville, à une centaine de mètres à l’Est de la gare RER. Le contexte bâti est assez hétérogène. Le front bâti de l’ensemble du côté impair de l’Avenue est en retrait à l’exception des bâtiments plus proches de la voie ferrée qui retrouvent l’alignement sur l’avenue. Côté pair le front bâti est majoritairement en léger retrait de l’Avenue. L’ensemble des trottoirs est en enrobé teinté ocre.
Le bâtiment existant
Le bâtiment est en retrait de l’Avenue mais avancé de 8m par rapport au front bâti général, notamment du « bâtiment » de logements en R+6 qui se trouve à sa droite, et en retrait de 5m par rapport à l’agence immobilière en RDC à sa gauche. Il présente une profondeur d’environ 20m et une largeur d’environ 13m.
Sa volumétrie est simple, sur trois niveaux à toiture d'apparence plate. Les deux premiers niveaux se caractérisent par de larges baies vitrées de proportions horizontales, le troisième (ajouté ultérieurement) des baies sensiblement moins larges mais conservant également des proportions horizontales. La façade est en enduit de teinte claire. Le pignon côté bâtiment de logements est totalement aveugle. A l'arrière, côté jardin, en contrebas du talus de la voie ferrée et non visible de la rue, se trouve également un bâtiment en R+1+C, mono-orienté, collé sur la limite séparative Nord et qui avait une fonction d'habitation.
Volumétrie générale
Le programme du projet consiste en la création d’un immeuble de logements sur cinq niveaux dont un centre dentaire et médical sur les deux premiers niveaux.
Le bâtiment à l’arrière sera simplement rénové et des aménagements permettront l’accessibilité au jardin pour l’évacuation des PMR.
Le projet consiste en plusieurs interventions :
-du point de vue qualitatif : à conserver les larges baies vitrées qui caractérisent les deux premiers niveaux et à en reprendre les dimensions pour les étages supérieurs tout en les adaptant à l’usage des logements ; ainsi, les façades maçonnées se plient pour accentuer le traitement en creux des terrasses et animer l’actuel pignon aveugle du bâtiment
-du point de vue quantitatif en une surélévation de deux niveaux.
Les entrées de chacun des programmes sont placées aux deux extrémités de la façade afin de bien distinguer les usagers et éviter d’éventuelles nuisances réciproques. De même en volume, un joint creux vient formaliser la séparation entre le centre dentaire et médical et les logements.
Organisation intérieure du centre médical
L’espace d’accueil ouvre très largement sur la distribution du rez-de-chaussée, l’escalier menant au R+1 et l’espace d’attente.
Les locaux communs à tous les dentistes (à savoir la salle de chirurgie, la salle radio panoramique et la salle de stérilisation) ne nécessitant pas d’apport de lumière naturelle sont disposés de manière centrale également. A l’inverse, nous disposons un maximum de cabinets en façade afin de les éclairer naturellement. Enfin, le bâtiment à l’arrière (côté jardin) est réservé uniquement au personnel : les sanitaires, le vestiaire, la salle de détente qui s’ouvre sur le jardin (idéal pour les pauses et déjeuners ensoleillés aux beaux jours), et des locaux de stockage.
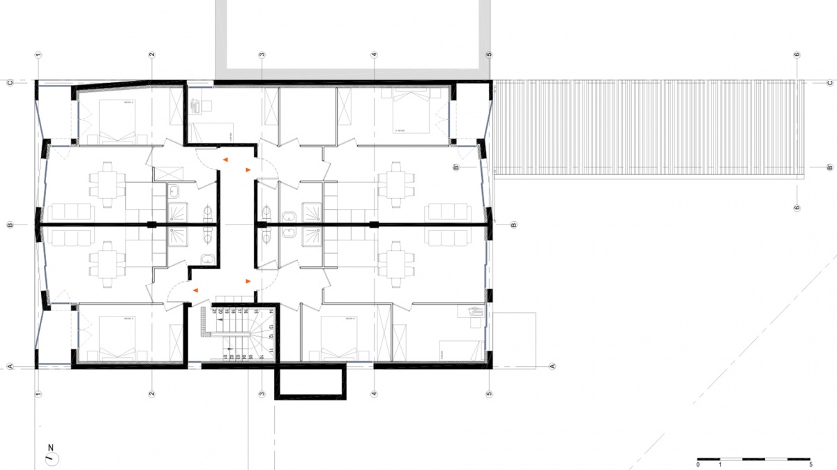
Organisation intérieure des logements
Comme évoqué précédemment, le bâtiment existant présente une profondeur d’environ 20m et une largeur d’environ 13m ; cette largeur permet d’envisager l’éclairage de deux logements côte à côte sur chaque façade ((2.5m de largeur minimum pour une chambre + 3.5m de largeur minimum pour un séjour) x 2 logements = 12-13m). Cette trame très simple permet une meilleure adaptabilité des logements. Au centre du bâtiment sont regroupées toutes les pièces de fluides (salle de bain et sanitaires). Les cuisines sont pour la plupart des logements en second jour à l’exception des deux T4 où elles sont fermées et éclairées en premier jour. Quatre appartements sont desservis sur chaque palier. Tous les appartements ont à minima une double orientation. La distribution des étages est assurée par un escalier encloisonné éclairé naturellement. Enfin, sur les huit appartements, sept bénéficient d’une terrasse extérieure
Matériaux et végétalisation
Conscients de la position avancée du bâtiment, nous recherchons une écriture simple. Nous optons donc pour :
- deux matériaux principaux : de la maçonnerie enduite lisse pour les parties pleines, et du verre.
- trois couleurs : un gris agathe (RAL 7038) pour la façade du centre dentaire et médical sur les deux premiers niveaux, un blanc gris (RAL 9002) pour les logements sur les trois niveaux suivants et une couleur terre de Sienne (RAL 8001) pour la sous-face des loggias qui rappelle la teinte des toitures en tuile des bâtiments environnants, l’enrobé teinté de couleur ocre sur l’ensemble du trottoir,…
Le projet apporte une végétalisation en façade qui n’existe pas actuellement par le biais (au sens propre et figuré) des loggias agrémentées de bacs plantés au-devant des garde-corps. De même, la toiture-terrasse sera végétalisée afin que les bâtiments voisins plus hauts puissent bénéficier d’un vis-à-vis qualitatif.
-
-
Plan masse
-
Plan rez de chaussée centre de santé
-
Plan étage courant logements
-
Axonométrie découpage des façades et création des loggias
-
Photos de l'existant
Vue depuis l'accueil du centre de santé